Nhận định về mức giá 5,5 tỷ cho lô đất 60m² tại đường Thống Nhất, P11, Q.Gò Vấp
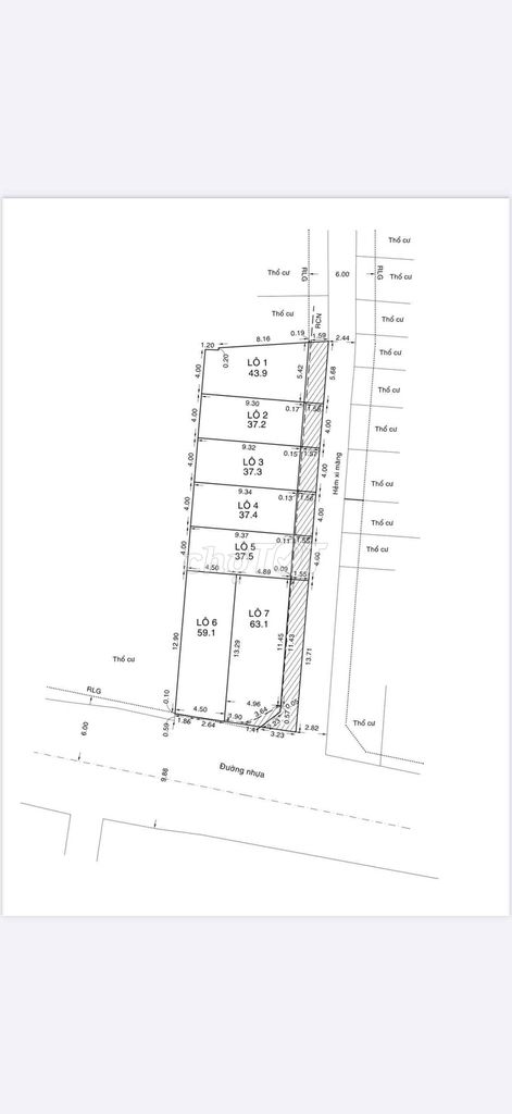
Với diện tích 60m² (4,5m x 13m), loại đất thổ cư có sổ đỏ riêng, hẻm xe hơi rộng 10m tại vị trí trung tâm quận Gò Vấp, Tp Hồ Chí Minh, mức giá 5,5 tỷ đồng tương đương khoảng 91,67 triệu đồng/m².
Đây là mức giá khá cao so với mặt bằng chung khu vực này, đặc biệt trong bối cảnh thị trường hiện nay. Tuy nhiên, nếu xét về vị trí ngay trung tâm, hẻm xe hơi rộng, pháp lý đầy đủ thì có thể coi là hợp lý trong nhóm đất hiếm và có tiềm năng tăng giá.
Phân tích chi tiết và so sánh giá thị trường
| Tiêu chí | Thông tin lô đất | Giá tham khảo khu vực tương tự | Nhận xét |
|---|---|---|---|
| Diện tích | 60 m² (4,5 x 13 m) | Tương tự | Diện tích nhỏ gọn phù hợp gia đình nhỏ hoặc đầu tư |
| Vị trí | Đường Thống Nhất, P11, Gò Vấp, hẻm xe hơi 10m | Gần trung tâm Gò Vấp, hẻm xe hơi khác 6-8m | Hẻm rộng 10m là điểm cộng lớn, dễ dàng đi lại và xây dựng |
| Pháp lý | Đã có sổ đỏ, đất thổ cư | Tương tự | Pháp lý rõ ràng, thuận lợi cho giao dịch và xây dựng |
| Giá/m² | 91,67 triệu đồng/m² | 70 – 85 triệu đồng/m² | Giá đề xuất đang cao hơn 10-30% so với mặt bằng chung |
| Tổng giá | 5,5 tỷ đồng | 4,2 – 5,1 tỷ đồng | Có thể thương lượng để giảm khoảng 5-7% xuống còn 5,1 – 5,2 tỷ đồng |
Lưu ý khi quyết định xuống tiền
- Pháp lý rõ ràng: Kiểm tra kỹ sổ đỏ, không có tranh chấp, quy hoạch ổn định.
- Hạ tầng xung quanh: Đường hẻm rộng 10m là điểm cộng, nhưng cần khảo sát thêm tình trạng giao thông, tiện ích, an ninh.
- Tiềm năng phát triển: Gò Vấp đang phát triển mạnh, đất trung tâm có giá trị gia tăng cao.
- Khả năng tài chính: Giá cao nên cân nhắc về khả năng thanh khoản và chi phí đầu tư xây dựng sau này.
- So sánh với các lô khác: Lô 6 và 7 có giá trên 11 tỷ cho diện tích lớn hơn hoặc vị trí tốt hơn, nên giá 5,5 tỷ cho lô nhỏ hơn là hợp lý nếu xét về mặt tương đối.
Đề xuất mức giá hợp lý và cách thuyết phục chủ nhà
Dựa trên phân tích, mức giá 5,1 – 5,2 tỷ đồng là hợp lý và có cơ sở thuyết phục hơn so với mức 5,5 tỷ hiện tại. Bạn có thể dùng các lập luận sau để thương lượng:
- So sánh giá/m² thấp hơn các lô đất tương đương trong khu vực có vị trí và diện tích lớn hơn.
- Đề nghị giảm giá để bù trừ cho các chi phí phát sinh khi hoàn thiện pháp lý hoặc xây dựng.
- Thể hiện thiện chí mua nhanh, thanh toán sớm để giảm rủi ro cho chủ nhà.
- Nhấn mạnh yếu tố thị trường hiện tại đang có xu hướng ổn định hoặc giảm nhẹ để có lợi cho người mua.
Việc thương lượng nên được thực hiện một cách khéo léo, tránh làm chủ nhà cảm thấy bị ép giá, mà nên tập trung vào giá trị thực tế và lợi ích chung của giao dịch.


